Satınalma Ödülü-Adana Ticaret Odası Hizmet Binası Ulusal Mimari Proje Yarışması


Proje Bilgileri
Satınalma Ödülü-Adana Ticaret Odası Hizmet Binası Ulusal Mimari Proje Yarışması

Kategori YARIŞMA
Kullanım Ofis

İşveren Adana Ticaret Odası

Takım

Necdet Beker, Mimar  (Eskişehir Osmangazi Üniversitesi)
İlker İğdeli, Y.Mimar (Eskişehir Anadolu Üniversitesi-İstanbul Bilgi Üniversitesi)
Meltem Yazal, Mimar (Yıldız Teknik Üniversitesi) 
Ahmet Kurtuluş, Peyzaj Mimarı (Ankara Üniversitesi) 
Elif Gözlügöl  , Mimar ( Anadolu üniversitesi )
Funda Ergün , Mimar ( Çukurova Üniversitesi) 
Sezin Şahin, Mimar (Doğu Akdeniz Üniversitesi)  

Proje Raporu

 
ADANA TİCARET ODASI Hizmet Binası  proje alanı, eski mensucat fabrikası ve  eski tren yolu ile d-400 otoyolu  arasında kalan , kent merkezine doğru uzanan parselde yer almaktadır. Arazinin yakın çevresi endüstri bolgesi olma niteliğinden çıkarak merkezi çalışma alanlarına dönüşmektedir. Ticaret ve Sanayi Odası’nın buradaki kentsel dönüşüme işlevsel ve mekansal olarak öncülük edeceği şüphesizdir. 
Adana’nın tarihi bir ticaret kenti oluşu ve 20. yy’da endüstri kenti haline gelişi, günümüzdeki yansımasını ve kimliğinin ifadesini ticaret odası yapısında bulacaktır. 
Alandaki en belirleyici girdi arazinin ve eski demiryolu hattının kuzeyindeki Milli Mensucat Fabrikasıdır. Ticaret odası yapısının kurgulanmasında Herman Jansen’in Adana Planı ve Kültür Merkezine dönüştürülmesi planlanan Milli Mensucat fabrikası ile ilişki kurulması belirleyici faktörler olmuştur. Jansen’in kent  planında kamusal alan ve yeşil alan olarak gösterilen proje alanı ve komşu parseller  plana sadık kalınarak ele alınmış ve buna ek olarak ipek yolunu taşıyan tarihi taşköprüden alınan yaya aksının mensucat fabrikasına bağlanmasıyla ana karakterine kavuşmuştur. 
 
Mevcut durum dinamikleri içerisinde araziye yaya yaklaşımı Güney yönündeki Turhan Cemal Beriker bulvarından, kuzeydeki Kültür Merkezine dönüştürelecek olan Milli Mensucat Fabrikasından ve Arazinin  Batısında bulunun başta Sanayi odası olmak üzere diğer kamusal programlardan olacaktır. 
Bu  girdiler doğrultusunda , yaya hareketini  araç hareketiyle  kesilmeyecek  biçimde organize etmek ve kamusal akış kesilmeyecek biçimde yapı batıda pilotiler üzerine kaldırılarak  ve güney –kuzey-batı yönlerinde ise yarıklar açılarak  açık/yarı açık kamusal 
kullanım alanları oluşturacak şekilde kurgulanmıştır. 
 
Arazinin sol tarafında kalan mevcut sanayi odası ve ticaret odası arasında kalan alan, Jansen tarafından yapılan kent planında olduğu gibi yoğun yeşil alan olarak ele alınmıştır ve yayalaştırılmıştır. Bu tutum sanayi ve ticaret odası yapılarının bir bütün olarak değer bulmasını hedefler. Bu yeşil alan aynı zamanda arazinin batısında yer alan diğer kamu yapılarının yeşil alanlarıyla birleştirilerek yeşil alan sürdürülebilirliği ön planda tutulmuş ve Jansen plan yaklaşımında olduğu gibi yaya aksları yeşil akslarla birbirine bağlanmıştır. 

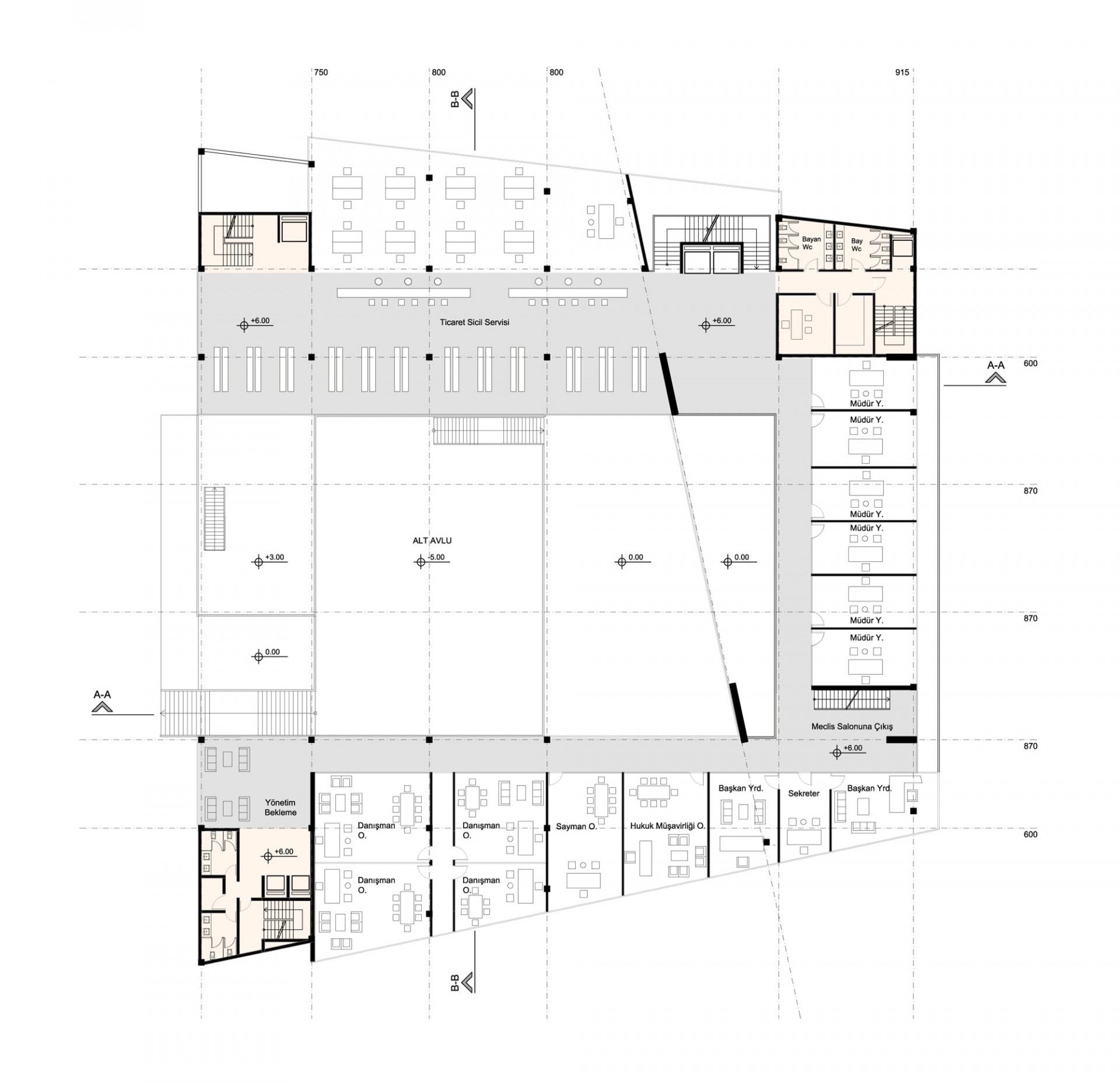
AVLU

MİMARİ  KURGU
Yapının güney cephesindeki seyhan nehri manzaralı  çok amaçlı teras meclis salonunun açık fuayesi gibi davranmakla beraber çeşitli organizasyonların yapılmasına olanak sağlarken üzerindeki saçak da ATO binasının simgesel gücünü ve sembolikliğini kuvvetlendirir.